4 Bed Terraced House For Sale

St. Saviours Road, Spinney Hills, Leicester
£365,000

Description

  • LARGE FAMILY HOME

  • 2 VERY SPACIOUS RECEPTION ROOMS

  • LARGE FITTED KITCHEN

  • 4 DOUBLE BEDROOMS

  • 2 BATHROOMS

  • EXCELLENT LOCATION OVERLOOKING THE PARK

  • CONVENIENT FOR SCHOOLS AND AMENITIES

  • EASY ACCESS TO CITY CENTRE

  • COUNCIL TAX BAND C EPC RATING D

  • Available Broadband - standard - superfast . Ultrafast See ofcom broadband checker

INTRODUCTION

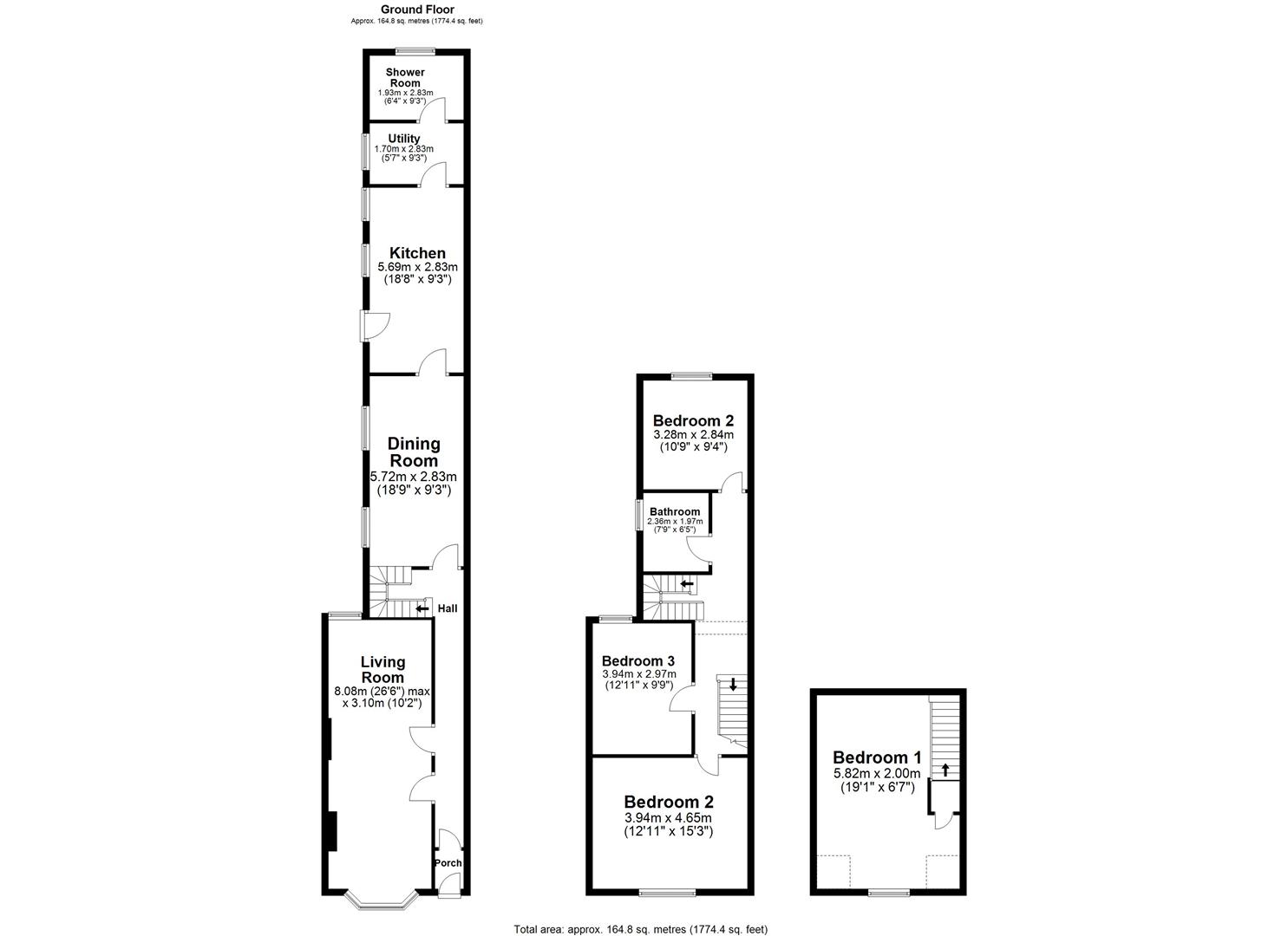
Boasting a huge 172m2 of internal floorspace this extremely spacious property has been extended and improved by the current owners to create a large and well presented family home with 2 generously proportioned reception rooms, a large re-fitted kitchen, 4 double bedrooms, a family bathroom and a separate re-fitted ground floor shower room.
Benefiting from Gas Central Heating and majority uPVC double glazing, this delightful family home is conveniently located on St Saviours Road in the heart of the much sought-after Spinney Hills conservation area and enjoying views of Spinney Hill Park to the front. Close to all of the area’s many amenities including shops, restaurants, schools and places of worship.

THE ACCOMMODATION

Standing behind a low brick wall with a forecourt style front garden, the house is entered through a timber front door and onward into the long entrance hall providing access to the ground floor accommodation and having a dog-leg staircase rising to the first floor. Originally 2 separate rooms, the impressive living room measures an enviable 26’6” in length with a bay window to the front and a window overlooking the rear garden. The dining room at the end of the hall has ample space for a large family dining suite with a door to the kitchen. The large extended kitchen has been fitted with a range of modern base and wall units with space for white goods and an external door into the garden. A door at the end of the kitchen leads into a utility area and onwards into a re-fitted shower room comprising a toilet, sink and walk-in shower enclosure.
A staircase rises from the hall to the large first floor landing giving access to 3 double bedrooms. The exceptionally spacious front bedroom extends the full width of the house whilst the 2 slightly smaller double bedrooms overlook the rear. The family bathroom comprising a toilet, sink and bath with a shower and glass screen over completes the first floor accommodation. A second staircase rises to the second floor with a small landing and a large double bedroom with a dormer window overlooking the front garden and the park beyond.

OUTSIDE

The frontage is a small courtyard style front garden standing behind a low red brick wall with a wrought iron gate. A shared entry with a timber gate leads to the rear. The enclosed rear garden has been mainly paved to create an excellent barbeque area with a concrete sectional storage shed at the bottom.

THE AREA

Spinney Hills is a mainly residential area lying approx. 2 miles east of the city centre with excellent road links and public transport routes. Comprised mainly of larger style Victorian terraced houses, the area also has its own shopping centre along East Park Road with a variety of shops banking facilities and eateries with established industrial sites around the area.
Spinney Hill Park is a beautiful 34 acre open space forming part of the conservation area with a brook meandering through the middle, shaded walks, a bowling green, games and play areas and an outdoor gym.

Location

Floorplan

EPC

To discuss this property call our Leicester branch:

01162 607788

or Book a viewing
SAVE TO SHORTLIST REMOVE FROM SHORTLIST

Market your property
with Aston & Co

Book a market appraisal for your property today. Our virtual options are still available if you prefer.

PROPERTY SEARCH